BUZ-Dresden

Werden Sie Teil des

Bonhoff-Unternehmer-Zentrums

Das Bonhoff-Unternehmer-Zentrum im Bonhoff-Haus liegt im Stadtteil Löbtau, Tharandter Straße 13.

Es verfügt über alle Einrichtungen eines modernen
Büro- und Geschäftsgebäudes.
Dazu eine Tiefgarage mit Platz für 76 PKWs.

Mit Straßenbahn, Bus und S-Bahn erreichen Sie in ca.
10 Minuten das Stadtzentrum. Ein Einkaufszentrum
ist vom BUZ wenige Gehminuten entfernt.

Bleiben Sie flexibel.

Unsere Büros sind es auch.

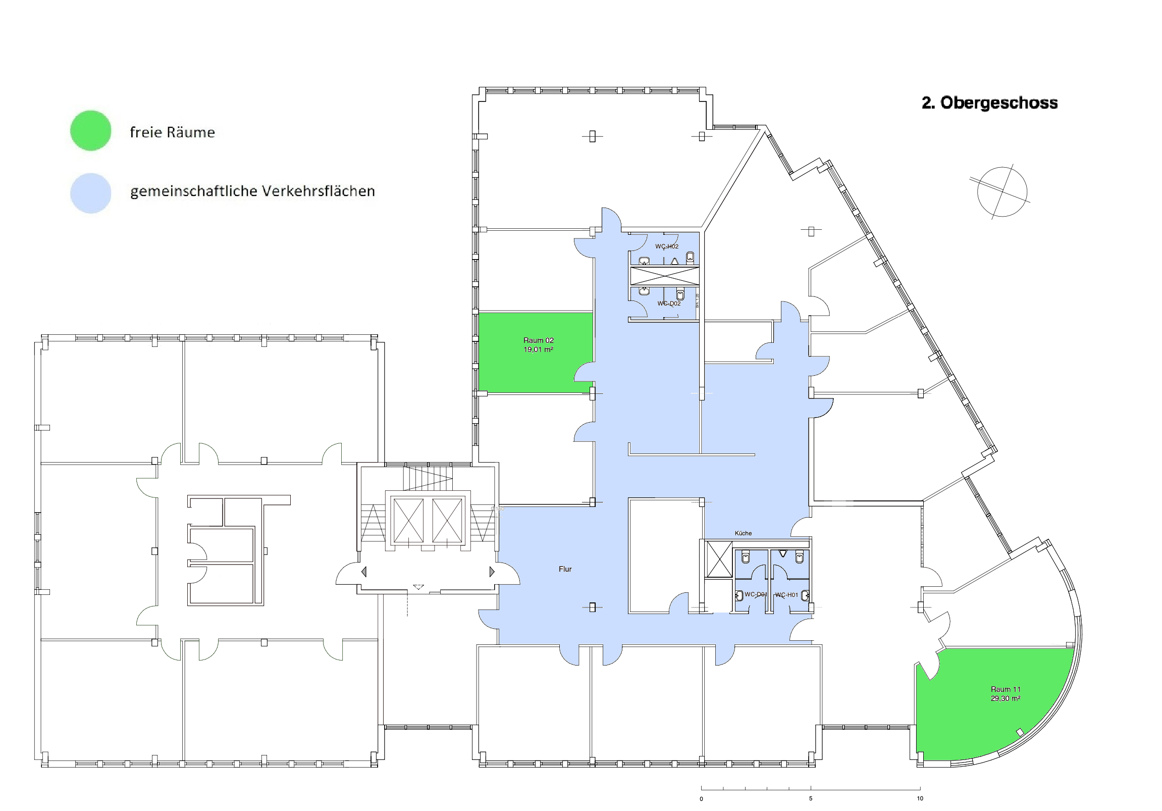
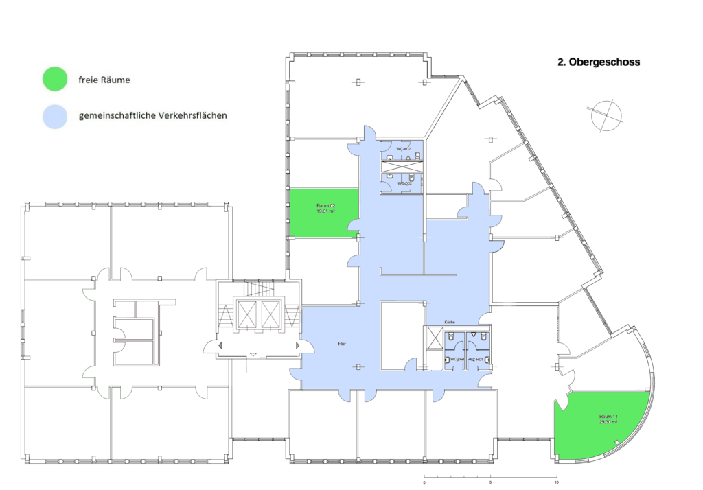
Aktuell freie Räume im BUZ

Im 2. Obergeschoss

demnächst freie Räume im BUZ –
von 16,5 m² bis 29,3 m²

Für eine Vergrößerung Bild anklicken

Im Erdgeschoss

Raum 2 – 35,45 m²

Raum 3 – 28,23 m² (frei ab dem 01.07.2026)

Für eine Vergrößerung Bild anklicken

Haben wir Ihr Interesse geweckt?

Haben Sie Interesse?